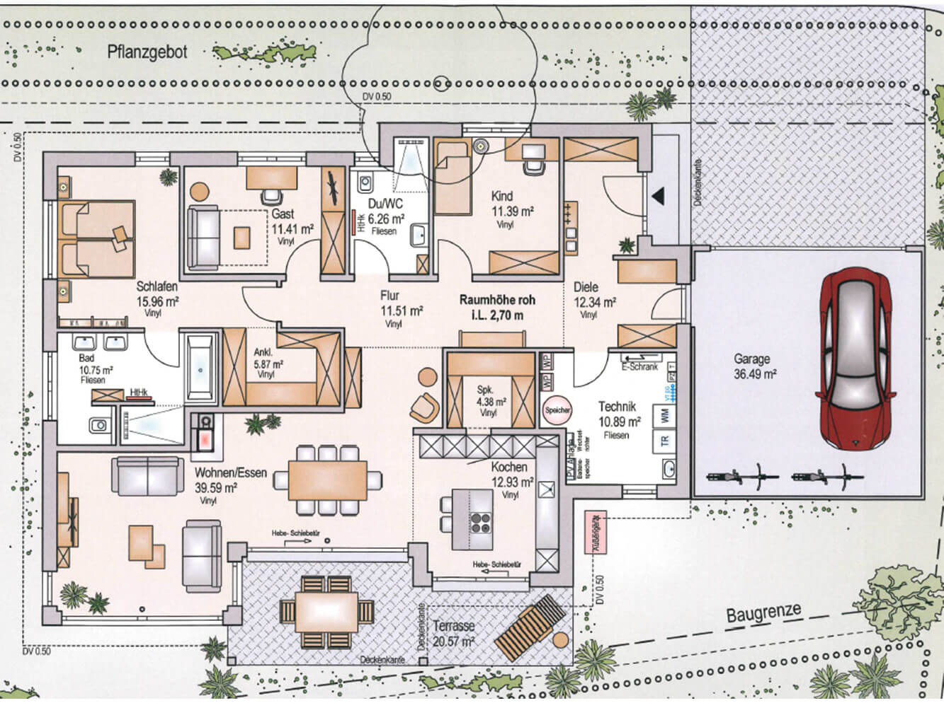
Einfamilienhaus Typ M-410




Allgemeines
- Moderner Bungalow mit unkonventioneller Gestaltung als Flachdachhaus
- Großzügiger, komplett geöffneter Wohn-Ess-Kochbereich mit zahlreichen bodentiefen Fensterelementen und direktem Zugang auf die Terrasse
- Der Entwurf kann ganz auf Ihre individuelle Lebenssituation flexibel angepasst werden – als Familienhaus mit zwei Kinderzimmern und eigenem Kinderbad oder als altersgerechter, ebenerdiger Wohnsitz mit Gäste-/Betreuerzimmern mit eigenem, großzügigem Badezimmer
- Der Eltern-/Hauptschlafzimmerbereich ist als separater Bereich gestaltet und hat direkten Zugang in ein großzügiges Hauptbad mit Badewanne und begehbarer Dusche. Ein separates Ankleidezimmer findet hier außerdem Platz.
- Zahlreiche Fensterelemente bringen viel Helligkeit und eine warme, freundliche Atmosphäre ins Haus
Wohnfläche Erdgeschoss
Wohnen/Essen: 39,59 m²
Kochen: 12,93 m²
Speisekammer: 4,38 m²
Diele: 12,34 m²
Flur: 11,51 m²
Gast: 11,41 m²
Du/WC: 6,26 m²
Kind: 11,39 m²
Schlafen: 15,96 m²
Ankleide: 5,87 m²
Bad: 10,75 m²
Terrasse: 20,57 m²
Technik: 10,89 m²
Gesamt: 173,85 m²
Nutzfläche Erdgeschoss
Garage: 36,49 m²
Gesamt: 36,49 m²
Gesamtfläche Erdgeschoss (inkl. Garage)
Wohnfläche EG: 173,85 m²
Nutzfläche EG: 36,49 m²
Summe: 210,34 m²